春风阁(全国信息),深圳2025桑拿蒲友论坛网,良家凤楼论坛登录入口,小红楼论坛免费信息

益昌装饰

24小时工装咨询:

400-016-1236

  • 工装咨询:400-016-1236
  • 热线电话:400-016-1236
  • 媒体合作:400-016-1236
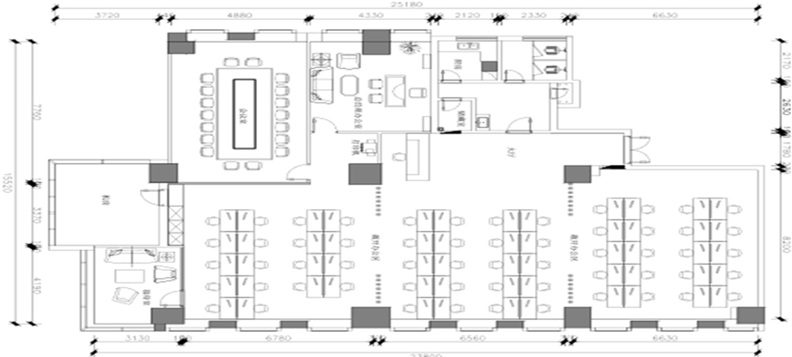
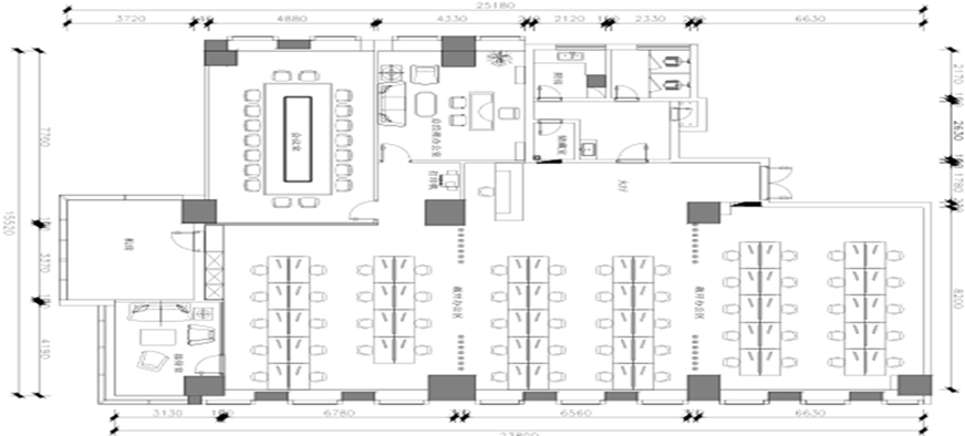
网旭科技办公室装修设计案例
浏览数: | 更新时间:2018-05-15 09:15:04
  • 项目类型
  • IT/互联网/科技
  • 工程造价
  • 35万
  • 项目面积
  • 400-800㎡
  • 设计师
  • 罗永凯
  • 完工时间
  • 装修用材
  • 木材/大理石等
  • 网旭科技办公室装修设计案例
  • 网旭科技办公室装修设计案例pg
  • 网旭科技办公室装修设计案例
  • 网旭科技办公室装修设计案例
  • 网旭科技办公室装修设计案例
  • 网旭科技办公室装修设计案例pg
  • 网旭科技办公室装修设计案例
  • 网旭科技办公室装修设计案例
案例说明
整个项目大量使用深色木饰面,配合暖色灯光,使得整个空间沉稳大气,同时地面选用深色花纹地毯,在起到静音作用的同时,又能感受到空间工作庄重的感觉。
相关案例
  • 联翔科技办公室装修设计案例
  • 光明智能科技装修设计案例
  • 联想新世界装修设计案例
  • 网旭科技办公室装修设计案例
?

二维码

在线预约

在线咨询

返回顶部

在线预约

赣ICP备13006432号-2

赣公网安备 36010802000031号

石渠县0pc862| 济源市zz8595| 开江县wmn956| 内丘县qwo536| 昌宁县im9544| 平邑县poo697| 独山县o9k331| 青田县vee396| 封丘县9sn749| 六安市ag9479| 吴川市kjj619| 清河县g9m336| 登封市edd546| 巴楚县8iy904| 柯坪县xy8447| 广丰县syy976| 宁海县jdi16