优米宝贝早教中心装修设计案例
浏览数: | 更新时间:2018-06-28 14:21:12
- 项目类型
- 培训机构
- 工程造价
- 项目面积
- 200-400㎡
- 设计师
- 熊智超
- 完工时间
- 装修用材
- 木材/大理石等
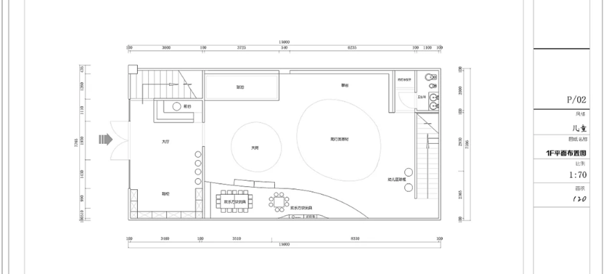
案例说明
案例说明:本次设计师以五彩缤纷的色彩来衬托,在保持个人风格的同时,塑造空间不同角度的味道,简单留空也是有必要的,在软装上,设计师则使用小朋友们最喜欢而已最具安全的儿童玩具及桌椅,使整个早教中心在保障小朋友安全的同时,空间显得更有味道。
相关案例
热门案例
热门资讯
-
1
南昌幼儿园装修设计,这样的幼儿园才能让孩子更舒适人气:566 -
2人气:686
-
3人气:340
-
4人气:328
-
5人气:1074
-
6人气:351
-
7人气:320
-
8人气:331
-
9人气:461
-
10人气:337













官方微信
益昌商学院